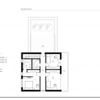
Denumire proiect: Casa 6
Amplasament: -
Perioada de realizare a proiectului: 2014
Stadiul proiectului: propunere
Suprafaţă teren: 500 mp
Suprafaţă construită: 135.90 mp
Suprafaţă desfăşurată: 216.85 mp
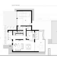
Denumire proiect: Casa 6
Amplasament: -
Perioada de realizare a proiectului: 2014
Stadiul proiectului: propunere
Suprafaţă teren: 500 mp
Suprafaţă construită: 135.90 mp
Suprafaţă desfăşurată: 216.85 mp