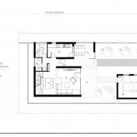
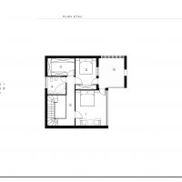
Denumire proiect: Casa S
Amplasament: Oraş Constanta, Judeţ Constanţa
Perioada de realizare a proiectului: 2013-2014
Stadiul proiectului: în curs de execuţie
Suprafaţă teren: 300 mp
Suprafaţă construită: 93.39 mp
Suprafaţă desfăşurată: 188.21 mp
Colaboratori: Ing. Odor Constantin
Ing. Adrian Călin



