Pensiune Navodari +

Denumire proiect: Pensiune Navodari

Amplasament: -

Perioada de realizare a proiectului: 2014

Stadiul proiectului: propunere

Suprafaţă teren: 4616 mp

Suprafaţă construită: 335.00 mp

Suprafaţă desfăşurată: 1025.00 mp

pensiune_navodari_site_randare_1.jpg
pensiune_navodari_site_randare_2.jpg
pensiune_navodari_site_randare_3.jpg
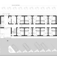
pensiune_navodari_site_parter.jpg
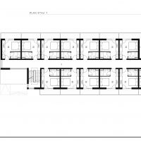
pensiune_navodari_site_etaj_1.jpg
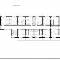
pensiune_navodari_site_etaj_2.jpg
pensiune_navodari_site_terasa.jpg